

一、概述
VSG-KR分配器适用于公称压力为40MPa的双线式干油集中润滑系统中,作为一种定量给油装置,它在两条供油主管交替的
供油压力作用下,直接由供油压力控制活塞动作给油,完成向润滑点定量分配润滑脂的功能。
VSG-KR型双线分配器上下面均有给油口,分配器活塞正反向动作时分别从上面和下面的给油口排出一次。在相应上、下给
油口内设有合二为一的排油结构,要改变奇数出油,只需调整导套的方向即可实现。可以从指示杆的动作直接观察分配器的工作
情况,同时还可以通过调整螺钉在规定范围内调整各个出油口的给油量。
二、技术参数

*表示出口数量,使用介质为锥入度不低于265(25℃,150g)1/10mm润滑脂(NLGI0#~2#)或粘度等级大于N68的润滑油:
使用环境温度为-10℃~80℃:如使用介质为润滑油时,请在20MPa压力下使用。
三、外形尺寸

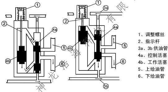
四、工作原理

双线分配器与每两个润滑点相连通的活塞孔中分别有—个控制活塞和—个工作活塞, 两个进油口分别与两条
供油管 3a 、3b 连接,当供油管—条加压时'另—条则卸荷。
如上图所示,由泵输送来的润滑脂'经供油管 3a 进入分配器控制活塞的上端,控制 活塞首先向下移动(这时
控制活塞下端挤压的润滑脂则进入卸荷的供油管3b), 使工作活 塞的上腔与控制活塞的上腔连通,然后工作
活塞向下移动,这时受工作活塞挤压的润滑 脂经过控制活塞的环形槽被压送到出油口 6 至润滑点,完成第—
周期的给油动作。 切换 至供油管3b供油开始第二周期的给油动作,分配器活塞按相同的顺序反向进行前述动作,
出油口 5 排送润滑脂。
五、使用说明
1 、在灰尘大、潮湿、环境恶劣的场合使用,应配防护罩。
2、双线分配器在系统中优先采用并联安装法,供油管与分配器在左边或右边联接均 可;其次采用串联安装法,须把
—侧进油口上起封闭管道的二个 G3/8 螺塞卸掉,最多串 接数不允许超过二个; 必要时可并串组合安装。
3、带给油螺钉的分配器 , 给油量不能调节,只有选择不同给油指数的给油 螺钉来改变给油量。
4、带运动指示器调节装置的分配器 ,其给油量的调整,应在指示杆缩回 去的状态下旋动限位器的调节螺钉,根据润滑点的实际需要在最大和最小给油量的范围 内进行调整。
5、带行程开关调节装置的分配器 , 其给油量的调整,也应在指示杆缩回去 的状态下进行,根据需要调整。
6、给油口数变为奇数时,将相对应出油口间的螺钉拿掉,并把不用的那个吐出油口 用 G1/4 螺塞封堵,上下吐出油口连通,活塞正反向动作均从此吐出油口出油。
7 、为便于拆卸,从分配器到润滑点的管道最好弯成 90o, 或者使用卡套式接头。
8、与分配器安装的面应光滑平整,安装螺栓不宜拧得过紧,以免变形影响正常动作。
六、常见故障及排除
1 、分配器不动作。
检查供油管有否压力油输送; 润滑点是否阻塞,给油管是否被压扁; 分配器内是否进 入杂质致使活塞孔拉毛等,查明排除后即可。
2 、指示调节装置指示杆处漏油。
拆下限位器体更换油封,可能是油封库存或使用时间过长老化或超过规定的使用环境 温度,查明后使用。
七、订货须知
1、带有给油螺钉的分配器 须按每对出油口的顺序注明给油指数,不注 均按给油指数 1 供货。
2 、带有行程开关调节装置的分配器 ,每块只带—件限位开关调节装置, 如有特殊需要,每对出油口都可配带'须注明,单独订货。
3、对出油口数为奇数的分配器,须按每对出油口的顺序注明那个不用的出油口位置, 不注均按右位上出油口堵供货。
4、分配器安装使用环境温度>+ 80℃的必须在订货合同中注明,以便供货使用耐高 温油封。
有关
在线留言
